VARIO čiré sklo 1400x2000mm
Kód: GX1214Související produkty
Detailní popis produktu
Kolekce walk-in zástěn VARIO nabízí chytré a flexibilní řešení podle individuálních a prostorových dispozic. Stavebnicový systém výplní, vzpěr a profilů umožňuje promyšlené kombinace rozměrů, barev a tvarů zástěn – ať už ke stěně nebo do prostoru. Elegantní vzhled díky minimu komponentů v chromovém, černém matném, bílém matném, zlatém nebo zlatém matném provedení je vhodný pro každou koupelnu.
Charakteristika sprchových walk-in zástěn série VARIO
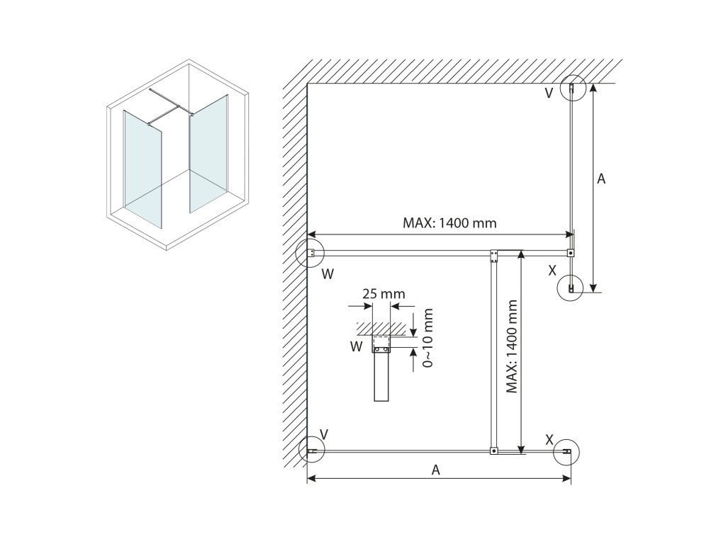
- Zástěny v šířkách 700 až 1400 mm
- Bezpečnostní sklo o síle 8 mm na výběr v provedení čiré / kouřové / matné / nordic nebo deska z vysokotlakého HPL laminátu o síle 8 mm
- Povrchová úprava skleněných výplní Coated Glass zabraňuje usazování vodního kamene a usnadňuje čištění
- Stěnové profily s tolerancí 15 mm usnadňují stabilní montáž zástěn, instalace je možná na dlažbu nebo sprchovou vaničku
- Stěnový profil zástěn na výběr z provedení: chrom / černá mat / bílá mat / zlatá mat
- Kolmá vzpěra o délce 1400 mm na výběr v provedení chrom / černá mat / bílá mat / zlatá mat
- Kolmou vzpěru lze zkrátit na požadovaný rozměr
- Rohová vzpěra o délce 650 mm na výběr v provedení chrom / černá mat / bílá mat / zlatá mat
- Možnost přidání pevného přídavného panelu o šířce 350 mm v provedení čiré sklo a barvě profilu chrom / černá mat ke skleněným výplním
- Variabilní provedení L/R
- Výška 2000 mm
Kombinace sestavení sprchového koutu:

S rohovou vzpěrou
a stěnovým profilem
Zástěny do šířky 1000 mm

S kolmou vzpěrou
a stěnovým profilem

Dvě zástěny se stěnovým
profilem spojené kolmými
vzpěrami a T-spojkou

Zástěna v prostoru
s dvěma kolmými vzpěrami
Balení obsahuje pouze sklo, stěnový profil a vzpěru je třeba objednat samostatně.
Vlastnosti
| Značka | GELCO |
|---|---|
| Série | VARIO |
| 3D model | ANO |
| Šířka | 1400 mm |
| Výška | 2000 mm |
| Typ výplně | Čiré sklo |
| Úprava skla | Coated glass |
| Tloušťka skla | 8 mm |
| Hmotnost / ks | 75.0000 kg |
| Balení | 1 ks |
| EAN | 8590913887642 |
| Taric | 70200080 |
| Záruka | 3 roky |
Coated glass
Coated glass představuje jednu z nejkvalitnějších úprav skla sprchových koutů. Jedná se o chemickou sloučeninu směsi polymerů, která ve spojení s katalyzátory reaguje s křemičitanovými skupinami obsaženými ve skle. Na skleněných plochách tak vytváří souvislou vrstvu filmu, která vyplní mikropóry ve skle a odpuzuje vodu. Vlivem voděodpudivého filmu se kapky vody shlukují a stékají z povrchu skla. I když dojde k nepatrnému udržení menších kapek na skle, nedojde k chemické vazbě, sklo nebude narušeno a nezešedne.
Doplňkové parametry
| Kategorie: | Sprchové stěny Walk In jednodílné ke stěně |
|---|---|
| Záruka: | 3 roky |
| EAN: | 8590913887642 |
| Výška: | 200 cm |
| Šíře: | do 140 cm |
| Šíře stěny: | 140 cm |
| Výška stěny: | 200 cm |
| Šířka: | 140 cm |
| Barva profilu: | Sklo bez profilu |
| Barva výplně: | Čiré sklo |
| Série: | Vario |
| Hmotnost: | 72,00 kg |
| Typ zásilky: | Nadmněrná zásilka |
| Série: | VARIO |
| Typ výplně: | ČIRÉ sklo |
| Úprava skla: | Coated glass |
| Tloušťka skla: | 8 mm |